السعر:
3,350,000
د.ك
صباح الأحمد البحرية
للبيع في
التوسعة الشمالية الفنطاس
المربع 12
,
مبارك الكبير

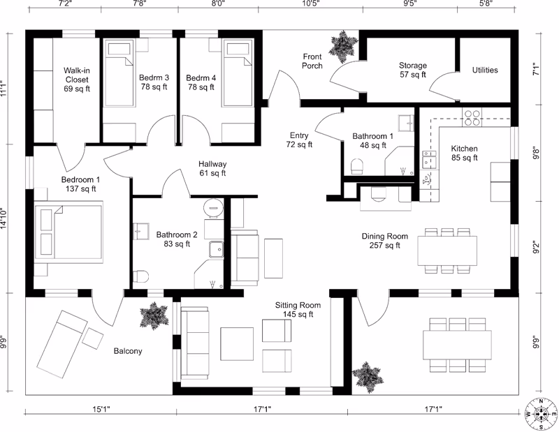
صور العقارات
مواصفات العقار
يُقدّم هذا العقار المصمم بعناية توازناً مثالياً بين الراحة والعملية والحياة العصرية. يتميز بمساحات داخلية واسعة، وتخطيطات مدروسة، وتشطيبات عالية الجودة، مما يجعله خياراً مثالياً للعائلات أو المستثمرين الباحثين عن قيمة طويلة الأجل. يضم العقار غرف معيشة رحبة، وغرف نوم متناسقة، ووسائل راحة عملية تُعزز سهولة الحياة اليومية. يقع في منطقة مرغوبة مع سهولة الوصول إلى الخدمات الأساسية والطرق الرئيسية، مما يجعله فرصة ممتازة للسكن والاستثمار على حد سواء.
الدخل الشهري
12%
KWD
سنة البناء
2027
طابق سرداب
لا
عدد المكاتب
12
مساحة الأرض
m
12,000
المساحة المبنية
m
89,830
عدد الطوابق
12
عدد الوحدات في كل طابق
250
عدد الوحدات
8
المرافق

استقبال

حديقة مشتركة

شرفة
المواقع القريبة

شاطئ

حديقة

وسائل نقل






No items found.





